Home | Architektur | Fotografie | Design | Ausstellungen | Info | Kontakt




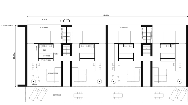
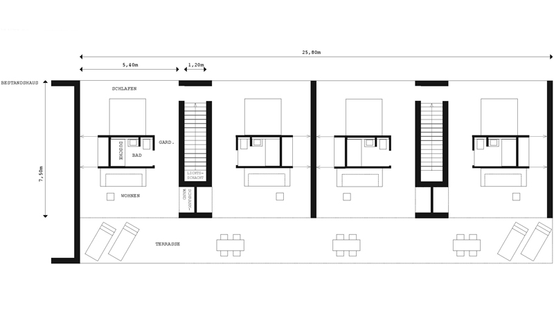
Ferienhausanbau Williams Lake, Kanada
Auftragsarbeit 2011




Verschiedene Varianten










Grundrisse






[zurück]